AG真人国际(中国)官方网站

AG真人国际(中国)官方网站
当前位置>首页>案例鉴赏>现代简约

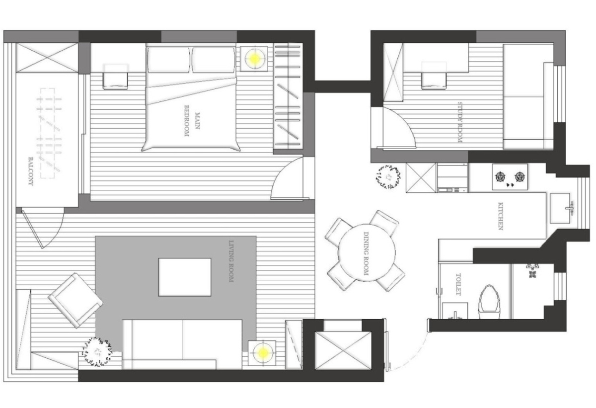
东直门小区

所在地区:北京市东城区   /   户型风格:别墅,平层,一居,两居,三居,四居以上   /   案例面积:75平米

更新时间:2020-11-24

现在预约

设计师:贾向楠
级 别:副主任设计师
部 门:

贾向楠

级别:副主任设计师 BTV《生活+》特约设计师

设计理念:一个优秀作品的诞生,往往来自于对生命本源的追溯;一个设计如果没有可以触碰灵魂的语言,那它将成为空间的堆砌...

擅长风格:现代,中式,田园,其他

主要作品:华业.东方玫瑰、上都首府、世纪金源、建东苑、北蜂窝南里、外馆斜街、悦和园、自由筑、纳帕澜郡、和平街15区、宏仁家园、丽都壹号、玺源台、世嘉光织谷、朝廷公寓、海淀美丽西园、石景山首钢小区、成寿寺华芳园...

电话预约:010-6433-2680


相关案例

友情链接:PG电子官网  米兰官网  PG电子官网  星空体育官网  365在线体育  AG真人国际  星空体育官网  星空体育官网  米兰官网  AG真人国际