
家是心灵的归宿,不论外面多少条条框框回到家有着最舒服最放松的状态才是王道。有工作、有学习享受、有休闲和天伦之乐,不再是生存以上,生活以下。利用AG真人平时看的着摸得着的东西来构建一种生活场景,其实是想真切的表达一种生活的本质与品质,下面就跟着小元一起来看看AG真人的样板间吧~

BTV《生活+》特约设计师贾向楠、BTV《生活+》特约设计师王维 、北京电视台著名主持人秦天

风格:轻奢/北欧 轻工业
面积:套内96平米
目标人群:70-90后主流阶层的三口之家
定制家具:衣柜 电视柜 书柜 门厅柜

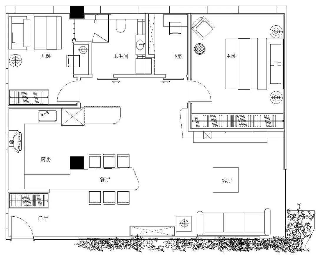
平面布置图
样板间整体动静分区。一是从空间规划上把门厅、餐厨和客厅根据生活轨迹化为动区,主次卧、卫生间与书房规为静区。二是场景动线,厨房和餐区的关系布局中尽量共用了通道而且与门厅形成了双向东线;同时也与客厅有短暂停留的地方,两个卧室与卫生间和书房适当空出一片区域,使用上比较便捷和私密。

从整体色彩上看,动区盐系风格。主色调用了大面积的蓝灰调性,搭配几种明度不同的鸭嘴绿将整个动区层次丰富起来,加入一些绿植作为点缀,让室内空间变得更有生气一些,墙面全部统一成大地色系,在视觉上能感受到平衡感,清冷中柔和到恰到好处的温暖。

静区糖系风格。给人的反应就是甜美,温暖和快乐,基本运用了饱和度较低的莫兰迪色调,这种自带灰度的色调,自带高级感。局部背景墙用到烟粉色和糖果色,不但不甜腻还很治愈。

从局部空间看样板间又有哪些特别的设计呢?
1.门厅
门厅的布局还是以宽敞为主,进门处定制一整面的悬空+感应灯带式的鞋帽柜,不用开柜门弯腰就可以脱换鞋,即使有泥土带入扫地机器人也可以无死角的清理,封闭式的分区收纳不会显得凌乱,而且底部的感应式灯带可以在进门时自动亮起不会再摸着黑找开关。


灰色亚光门板的材质在光源下更有高级的质感,说起灯光,其实全屋采用的是这种无主光源设计,就门厅来讲这种无边框筒灯打下来的光是非常柔和的。
2.一体化厨房
一体化设计,其实不仅适用大户型,小户型更值得考究,橱柜U字形延展出来餐厅区域,不仅增加了岛台的操作面,同时扩大了视觉感。从备餐到用餐,即使全家总动员转身咫尺动线都非常合理。

餐桌和对面的餐边柜的边缘也去掉了尖锐的棱角,餐边柜我觉得也是一个杂货铺储物充足又美观使用,平时储藏的零食酒水也可以触手可及,柜子上方半通透格栅好像也变成房子的中轴线,不仅区分了动线也遮挡了直视卫生间的干困扰,光感强的话还能折射出来线条感。

橱柜材也延续了门厅的蓝灰搭配墨绿色,台面两种不同颜色的岩板也做了一个视觉上的分区,地面材质就是当下完美逆袭的水磨石,门厅的水磨石地砖延申到厨房餐厅。

有主灯餐厅几乎可以做到无死角照明,但无法对局部进行强调,餐桌上金属几何线条聚光吊灯能突出用餐区,一方面考虑到餐桌配合吊灯提高颜值,一方面的话有聚光的光源打到食物上拍照啥的都会好看很多,促进食欲。

橱柜射灯突出照亮操作区,避免人挡住顶灯照明带来的死角。

3.客厅
客厅留白,减法的设计,没有多余的造型以墙面海吉布纹理作为过度并没有过多的装饰。
精致的皮质沙发环绕围坐组合,让每一款不同形态的沙发都包裹着幸福感,这也是AG真人最放松最依赖的一个地方,不规则的茶几挪走腾出来地方可以和家人朋友一起玩体感游戏,累了直接坐在地毯上就可以休息。

一整面的定制电视柜满足你对美观与收纳并存。电子壁炉的仿真火焰给与客厅感官足够的温度。

相对于传统主灯照明,摒弃了单一的大吊灯,用灯带、线性灯勾勒处轮廓、筒灯营造环境、壁灯替代落地灯如果想在角落的摩登单椅上看书这种焦点型的光也不会很暗,多种光源的组合搭配,可以达到视觉上的延伸同时营造家居的光影氛围,而且筒灯的布局也不是按照传统的方式,主要分布在电视背景墙、沙发背景墙、通道、客厅中央(茶几区域)散点照射。让整个空间看起来不再单一刺眼,更加有层次感。

4. 卧室
主卧设计了与衣帽间同样体量的衣帽柜,男女主人公都有各自的分区分别使用。

床体与背景墙运用的饱和度低的莫兰迪色调,这种加了灰度的色调自带高级感,半圆弧的设计迎合壁布进行点缀,柔美的曲线与色彩的温度能让人缓解压力,令人放松才能安然入睡。

床尾的一把单椅一盏灯可以满足睡前阅读的习惯,也可以当床尾凳来使用。

地面搭配紫色圆形地毯不仅和墙面呼应还建立了关系。

灯饰配合在卧室里尤为明显,换句话说,卧室里主灯基本退休了,许多时候设计了主灯也只是为了满足装饰效果。主灯照明会影响睡眠质量,只能关闭,而一关全屋黑的状态严重影响灯光体验,比如妻子休息,丈夫还有看书的需求,那么一盏台灯或阅读吊灯来提供局部照明,就算是起夜也不会又强烈的光感影响对方。

次卧里背景墙面采用低饱和度蓝色系分色,单纯不繁琐,营造处宁静优雅的睡眠空间。

5.卫生间
黑色亚光砖与绚丽的马赛克形成鲜明的对比,酷雅有度也是平衡了男女主人公的喜好。

干湿分离设计、淋浴房下沉式设计以及酒店式下水。

整体的台面满足干区的使用和收纳,水盆非常规的选择贝壳式都是提升了生活的体验感。

壁挂式马桶避免打扫的困扰,砌起来的水箱上可以摆放喜欢的装饰平。

最欣喜的还是它与书房形成对称式的隐形门,金属框包裹着糖果色玻璃,就像是水果味的巧克力。门关上都不会发现后面还藏着这这个空间。

对于卫生间照明,很多家庭就在顶部安装了一个主灯,由于投光原理,很多边角位置有阴影,比如洗漱台的化妆镜最好安装局部的灯带或者筒灯来补光。

虽然书房的空间虽然比较小但也是归于使用,比如需要一些创作或者需要安静状态下的工作也不会有干扰,累了可以环顾四周,绿色的书架和绿植可以缓解视觉疲劳,和书桌的组合来打造一目了然的整洁形象与自然的书香气息,充足的收纳空间满足工作物品的摆放。

看了AG真人的样板间有没有激发出您的装修灵感呢?如果您近期也在考虑装修,欢迎咨询AG真人!
AG真人2020亲情钜惠——整装套餐52800!包工包料包主材!免费仓储,基础工程终身免费保修,2020年5月4日前抢定装修还可享爱格板定制家具半价优惠,名额有限,仅限前50户。
想了解更多节目详情,敬请收看BTV生活频道4月28日20:10分由品质家装倡导者AG真人冠名播出的《生活+家装攻略之AG真人设计家》。识别下方二维码,还可下载AG真人提供的装修代金券。

扫描二维码领取代金券