婚房装修总有诸多考虑,本期案例是AG真人的业主李女士家的这套老房,房子在25年前装修过一次,使用面积82平米,三室一厅,如今打算重新装修一番,给孩子做婚房用。对于这套房子的改造,李女士提出了怎样的装修需求?设计师又是如何为业主设计规划的呢?一起来看看吧。

BTV主持人秦天 设计师王昊 业主李女士

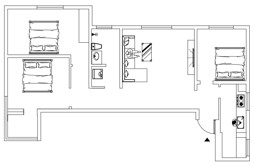
原始户型图
装修需求:
一、重新规划门厅、增加门厅储物
李女士家的门厅不到3平米,是个狭长形,小小的空间里有三个门、外加通向客厅的垭口,而且入户门是朝里开的,门厅空间几乎都利用不上,随着家里居住人口的增加,急需解决门厅储物问题。
二、合理规划厨房
厨房有7平米,面积并不小,可因为是个狭长形的格局,只能放下一组一字形橱柜。对于李女士来说,操作空间、储物空间都不够,李女士希望改造后的厨房能够储物强大,动线合理,操作便捷。
三、改善餐客厅功能
餐客空间有21平米,餐桌摆放在了客厅通往卧室的过道区域,每次通行都要绕着餐桌走,非常别扭。李女士希望,改造后的餐客厅空间能够宽敞明亮,满足一家四至五口人正常用餐的前提下,最大化的保留活动空间,未来可供孩子玩耍。
四、卫生间实现干湿分区、动线合理
卫生间有6平米,是里外间,里面的这4平米,集合了淋浴区、如厕区和洗漱三个功能,并没有进行干湿分区。外面的2平米只摆放了洗衣机,非常浪费。李女士希望通过这次改造,卫生间不仅要动线合理、实现干湿分区,而且淋浴的空间也要够大,为的就是将来给第三代洗澡更为方便。
五、重新规划次卧、增加储物
卧室有14平米,之前的布局李女士一直不太满意,而且严重缺乏储物,李女士希望改造后的这间卧室,不但精致美观,还能满足儿子和儿媳的正常储物,帮两个人解决婚后的居住难题。
针对李女士提出的门厅重新规划布局、厨房改善布局,增加储物空间、合规划局餐客厅、卫生间实现干湿分区等一系列改造难题,设计师王昊是如何帮李女士一家解决的呢?

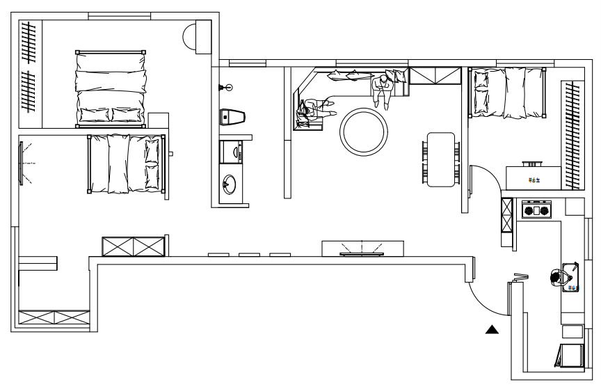
平面布置图
改造后实景:
1、门厅
为了让门厅和厨房都好用,设计师调整了卧室以及门厅和厨房的这面轻体隔断墙。在这里打造了一组通顶衣帽柜,来满足一家人平时出门的储物需求。顶面和柜体增加了光源来解决门厅的采光问题。

2、厨房
设计师改动了厨房的墙体后,橱柜可以做成L形的,提高了利用率。并且这面墙向门厅移动了8厘米,操作空间也变宽敞了。洗切炒动线合理,储物充足,小家电也有了更多的摆放位置。
3、客餐厅
设计师将餐客厅重新规划,21平米的餐客厅焕然一新,沙发、茶几、电视薄柜依次摆放,原来挡在过道的餐桌重新安置,不占用过道区域,客厅最大化保留了活动空间,利用灰色系与金属边框相结合的手法,打造简约的轻奢风格。

4、卫生间
为了实现卫生间干湿分区,将原有的墙体挪动了40厘米,按照业主的要求,将卫生间湿区最大化留白,方便未来给小孩淋浴使用,外面的空间则规划成干区。
干区实现洗衣、洗漱双重功能,定制浴室柜使墙面、台面、台下都得到了充分的利用,增加了储物空间。将原有到顶的这面墙体进行了拆除,改为半高矮墙,利用金属窗进行了镂空处理,整个空间采光充足、视野开阔、动线合理。
5、卧室
设计师利用定制家具沿着这面墙体,为李女士孩子的婚房打造了一组通顶衣柜,保温的同时,储物充足、既美观又实用,双人床摆放在这里,也不影响平时的正常出入。



