业主王女士
原始户型图
一、装修难点
1、空间动静不分 2、缺乏储物空间 3、缺少用餐区域 4、厨房利用不合理
二、设计师简介

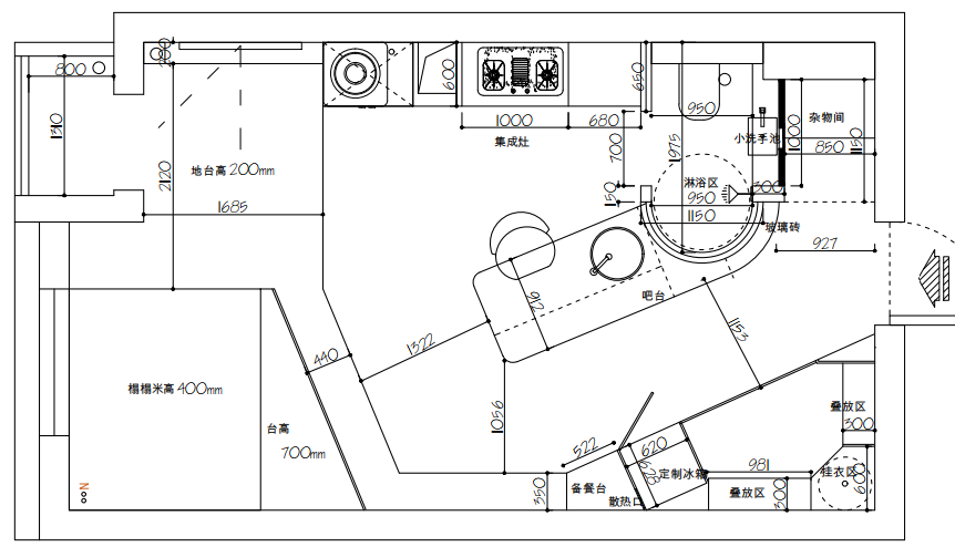
平面布置图
设计师贾向楠改变原有结构和动线,重新规划一条斜线异形布局,以岛台为中心,进行U字形设计规划,让小户型各个功能区完善的同时,还可以互相借用空间,实现多功能区域联动。
三、改造后实景展示
1、门厅空间



设计师将原有卫生间、厨房墙体拆除,采用异形布局空间,进门右手边一组定制鞋帽柜可随手挂一些日常衣物和放置生活用品。进门左手边设计师为王女士规划了一个异形的衣帽间,以满足大容量储物需求,同时,将冰箱巧妙的隐藏在了定制家具内,让空间更加整体。



二、餐区



设计师为王女士规划了一个兼具多功能的大餐桌,岛台的设计既可以作为餐区,也可以当做工作台。岛台下面利用定制家具设计的格子既可以储物又可以展示。
三、卧室



不规则的地台设计,既美观又增加了储物空间,还增大了休闲区。从榻榻米到地台,利用产生的层次感分割出了睡眠区和休闲区。
四、厨房


对于平时不常做饭的王女士来说,一个小而精致的开放式厨房完全能满足日常的生活需求,厨房对面区域就是洗菜区和岛台,洗菜,炒菜,备餐,操作起来也很方便。
五、卫生间



卫生间整体莫兰迪绿的配色,所有卫浴产品均为特殊定制,异形的淋浴间采用了玻璃砖,提升了整体卫生间的美观度。