厨房是家里最具有生活气息的地方,一个人会不会生活,看看他的厨房就知道了,在厨房中橱柜的选择非常重要,如何挑选一个适合自己的橱柜呢?今天AG真人就结合AG真人的新展厅,为您分析一下不同户型不同需求下的橱柜设计。
一、一字型橱柜解决方案


一般面积在4平米左右,宽度在1.5米以下,并且联通阳台的厨房,则建议做一字形橱柜,结合业主的操作习惯和实地情况,来布局洗切炒动线。如果厨房宽度超过1.6米,则可以选择一侧做标准橱柜,而另一侧则可以再做一组薄柜,来增加厨房的收纳。如果厨房宽度不够,则还可以在吊柜上做些文章。

生活中,AG真人或许都有过厨房吊柜里找东西麻烦的经历,而且两层的布局方式也浪费了很多空间。其实在设计的过程中,可以结合自身实际需求,打破常规的尺寸,将吊柜变薄,做成20厘米厚,同时延长,再增加内部隔板,这样使用起来更方便,而且空间利用更充分。
二、L型橱柜解决方案


如果您家厨房是狭长型,且没有连接阳台的户型,L形橱柜再合适不过了。这套橱柜,除了展示套餐里配套的柜体、门板、五金外,还为厨房提供了更多的个性化参考。


石英石台面升级为了岩板台面,更加结实耐用、抗污能力更强;挡水条升级成了同色岩板上墙,效果整体,而且好打理;增加了定制高柜,扩容了收纳;吊柜的双饰面门板升级成了玻璃门版,看起来更加通透。
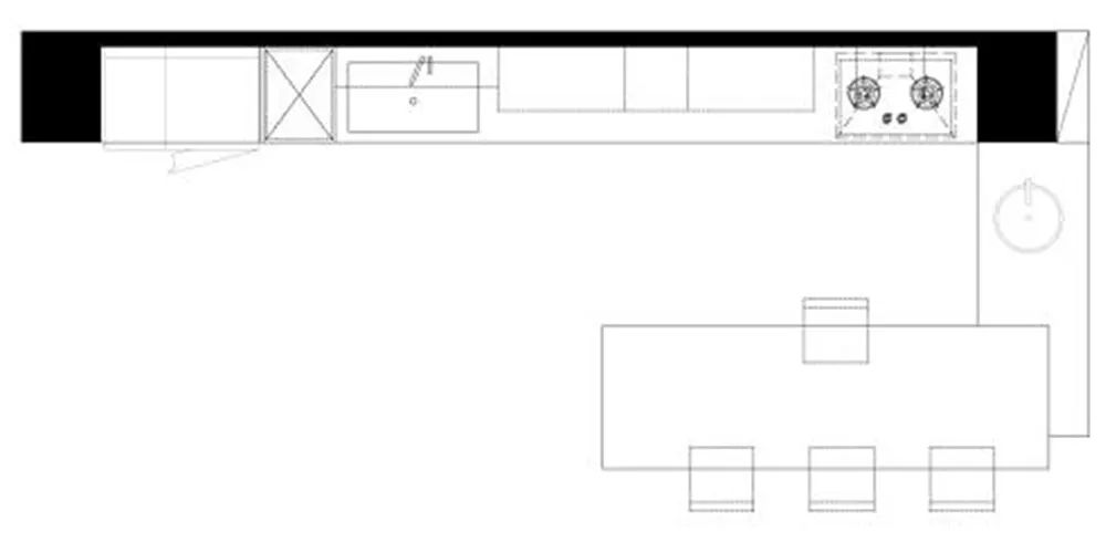
三、大户型开放式厨房解决方案


这套橱柜的设计适用于厨房空间10到15平米的家庭,或者能接受餐客厨一体的家庭,可以互借空间,增加互动感和空间感。这里既是厨房、又是餐厅、还可以兼具工作台等多种用途。





如果空间够大,或者能接受开放式厨房,这套餐岛厨一体的设计理念,您也可以尝试一下。不论是减小柜体厚度、加长柜体,还是这样三段式的吊柜设计方式,分类分区的收纳理念都给橱柜的设计带来了新思路。




如果您家的厨房不属于方正的空间,很难布局,针对异形厨房全新升级后的橱柜改造方案同样能够应对。