董女士新买的这套房子建筑面积是140平米,实际使用面积120平米,是四室一厅一厨两卫的格局,一般情况下是三口人居住,考虑到未来居住人口问题,董女士首先不想要这么卧室,另外想让家里有足够多的收纳储物空间,也不想要传统的餐厅,还要融入个性化的设计。

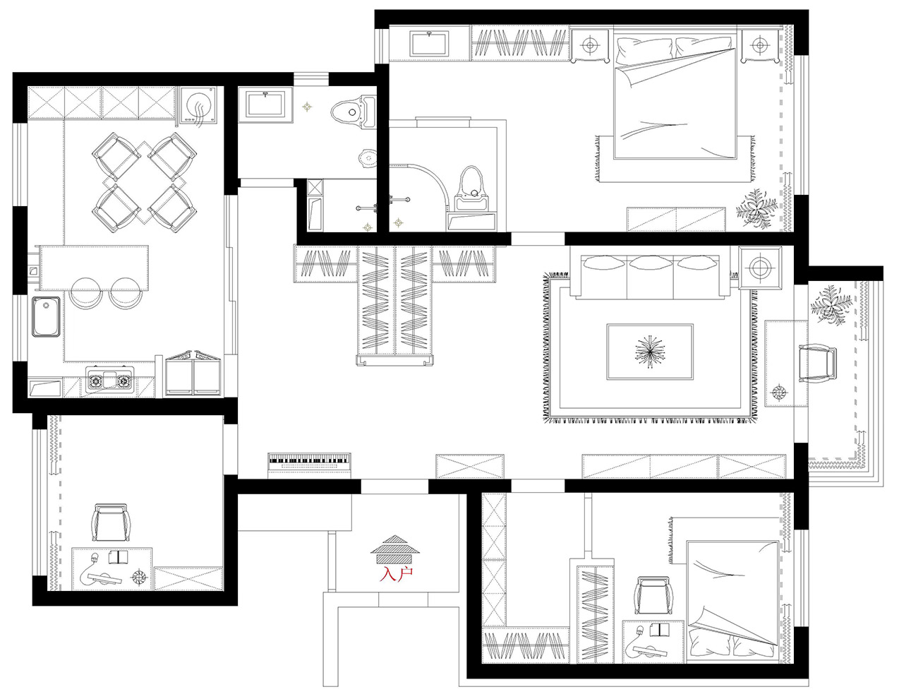
原始格局图

改后布局图
玄关空间
设计师将入户正对的空间规划为门厅区域,利用AG真人定制家具打造了两组L型衣帽柜,分区满足男女主储物需求,利用岩板进行装饰,更显品质。顶面利用悬浮吊顶配合暗藏灯带设计,让整体空间更加立体。
进门右手边则打造了一组通顶鞋帽柜,以方便进出更换鞋帽,随手放置小物件等。
客厅空间
客厅空间采用传统布局模式,沙发、茶几、电视柜满足了基本的生活需求。

设计师将沙发背景墙利用岩板上墙进行个性化设计,电视背景墙则涂刷了同色乳胶漆以进行呼应,使整体空间和谐呼应。阳台则规划了四人位餐桌,平时用餐,办公都可以在这里。
顶面利用石膏板进行悬浮吊顶设计,内嵌灯带以及筒灯、射灯,增加客厅氛围感,而且全屋灯光系统进行了智能互联,可根据自己喜欢的亮度进行明暗调节。
厨房空间
设计师将原厨房和次卧打通,重新规划整个空间,打造了L型橱柜,冰箱内嵌其中,中间规划了岛台,既增加了操作空间,也可简单就餐。
岛台另一侧区域则规划为了家政区以及娱乐区,整面墙的定制家具提供了充足的储物,洗衣机和烘干机也内嵌其中。
主卧空间
主卧空间设计师利用AG真人定制家具打造了通顶衣柜,同时将主卫格局稍作调整,洗手池外移,里面则保留了马桶和淋浴区,实现干湿分区。
次卧空间
设计师将次卧空间一分为二,里面规划为卧室,外面则为集收纳和展示为一体的储物间。


