本期案例是AG真人的业主张先生家的这套异形房,房子建筑面积正好100平米,使用面积75平米,两室一厅一厨两卫的格局,未来一家三口居住,房子本身就是异形,再加上家庭成员的装修需求,这次改造可谓难上加难。
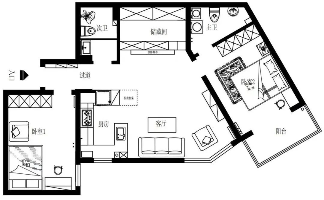
原始户型图
改后布局图
门厅空间
设计师选择了18公分的窄边鞋柜,高度为1米2,既能满足储物需求,也节省了过道空间。顶面用吊顶把横梁弱化,并用灯光把提亮了门厅空间。
次卫空间
设计师在次卫的马桶与水盆之间,用长虹玻璃来隔断,宽度只有2公分,节省空间的同时也实现了干湿分区。

餐厨空间
设计师拆除了原厨房和客厅共用的一面轻体墙,改为了开放式厨房,并且将整个空间规划为了餐厨一体空间,厨房面积扩大后,将原来的L型橱柜改为了U型橱柜,增加了储物收纳,一组高低柜,放置冰箱和折叠餐桌,用餐更方便。


客厅空间
在客厅这个异形空间里,由于有窗户,不好利用,设计师采用1+3的沙发组合形式,来布局异形空间。顶面环形吊顶,隐藏式投影幕布、集成新风、中央空调,美观与实用兼具。
设计师将原来餐区的位置规划了一个储藏间,为了与客厅更好的融合,储藏间的门,用柜体做成了隐形门,投影隐藏在这面墙上面,家里实现了投影的设计。
卧室空间
主卧室规划了四门定制衣柜,储物量充足,阳台的哑口还做成了弧形,增强了主卧室的美感。


