本期案例是业主夏先生的这套二手房,建筑面积89平米,使用面积64平米,两室一厅一厨一卫的格局,未来一家三口在这里居住,这次翻新不仅要考虑目前三口人居住的生活需求,还要考虑到未来孩子的成长需要。

原始户型图

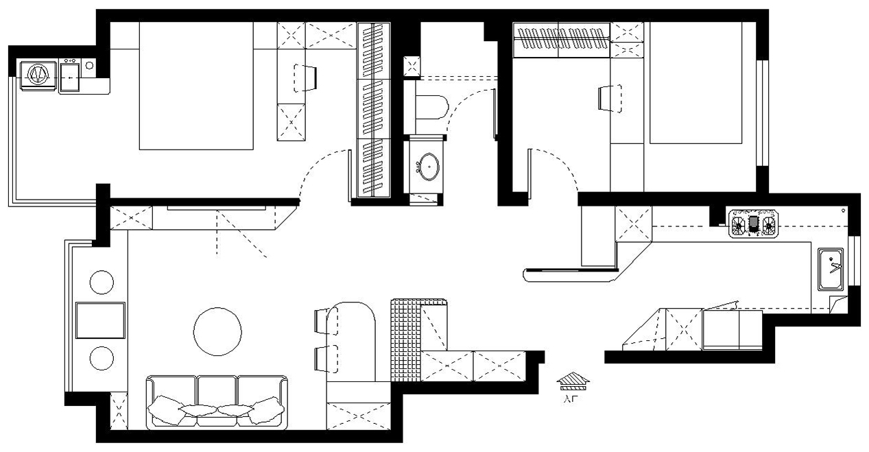
改后布局图
装修需求:解决入户门正对卧室门的尴尬,合理规划门厅,增加储物空间,重新规划厨房,满足大容量储物,合理规划客厅,满足会客、办公、就餐等需求,卫生间实现干湿分离。
门厅空间
设计师在门厅规划了一道玄关墙,解决了次卧室对入户门的尴尬。同时,也分隔出了一条动线,自然的引导到厨房、门厅。门厅做了定制的储物柜,不但解决了门厅储物的问题,还解决了客厅有拐角的格局问题。
厨房空间
设计师拆除了原厨房和门厅共用的一面非承重墙,将厨房延展至入户门空间,扩大了面积,规划了一组U字形的橱柜。还特别设计了一组电器柜,存放家里需要的电器。满足洗、切、炒和储物的功能外,还专门预留了水吧空间。
卫生间空间
设计师把卫生间门往后移了一米,干区与湿区分隔开,既解决卫生间的私密性问题,又解决了干湿分离的问题。
客厅空间
设计师将客厅的拐角用定制餐边柜,合理利用进深空间,做了餐桌、卡座、餐边柜的一体化设计。客厅里,利用窗边的位置,增加了地台,可作为储物区、办公区、休闲区,让整个客厅实现了多功能化。
卧室空间
设计师将卧室的门洞向里面移动了50厘米,在门口处做了一组U型半开放步入式衣帽间,这个衣帽柜的设计解决了储物、梳妆、办公的多种功能。同时,还保证了卧室的私密性。
儿童房空间
考虑到儿童房未来的可变性,设计师规划了一个地台,既可以当做活动玩耍空间,也可以放置一米八生意两米的大床,并且尾部还有活动空间。一组L型定制柜,将衣柜,书柜、写字台融为一体,合理利用空间的同时也满足了次卧生活需求。







