今年55岁的蔡先生,是个乐观的人,遇到什么事儿,永远都是乐乐呵呵,不急不躁,在他看来,人到了这个年纪,什么最重要,自然是舒服最重要,开心最重要!这不,自家的房子20年没装修了,住着不舒服,看着也不开心,关键是跟他的年轻心态也不相符。这套房子使用面积85平米,两室一厅一厨两卫的格局。
装修需求
●增加门厅储物,改善门厅采光
●厨房增加储物空间,可容纳各种厨房设备
●合理规划餐厅,满足多人就餐需求
●合理规划客厅,宽敞明亮且要有时尚感
●合理布局卫生间,满足日常生活需求
●重新规划卧室,满足日常储物,办公需求
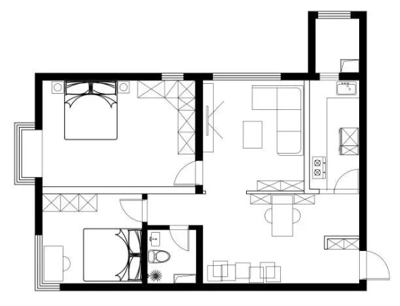
原始布局图
平面布置图
门厅空间
为了给蔡先生一个宽敞、明亮、舒适的居家环境,设计师拆除了所有的轻体墙,重新规划,在门厅右手边做了一组通顶的衣帽鞋柜,智能穿衣镜、换鞋凳,功能齐备。
餐区
设计师将墙体拆改后,整个餐区还是非常宽敞明亮的,能够满足多人就餐的需求,配合餐边柜,解决餐厅周边的收纳,台面可以放置小家电,下方还专门设计了放置扫地机器人的位置。
厨房空间
设计师将厨房和客厅共用的这面墙,往厨房方向移了40厘米,厨房外面,规划了西厨区,西厨区与门厅柜相连,整体定制柜体,把蒸烤一体机、冰箱嵌入其中。


中厨缩小到5平米,双一字形橱柜,无论是操作还是储物空间都得到了极大的提升。中西厨用隐藏式推拉门进行分隔,阻隔油烟的同时还更节省空间。


客厅
门厅、西厨、餐厅、客厅,整体都是这种偏极简的风格,这也符合蔡先生想要的年轻的感觉。客厅里还增加了收纳柜,整个空间整洁,明亮。
卫生间
卫生间实现了干湿分区,恒温花洒,智能马桶以及电毛巾杆的使用,大大提升了生活品质。
卧室
