AG真人国际(中国)官方网站

AG真人国际(中国)官方网站
当前位置>首页>案例鉴赏>案例

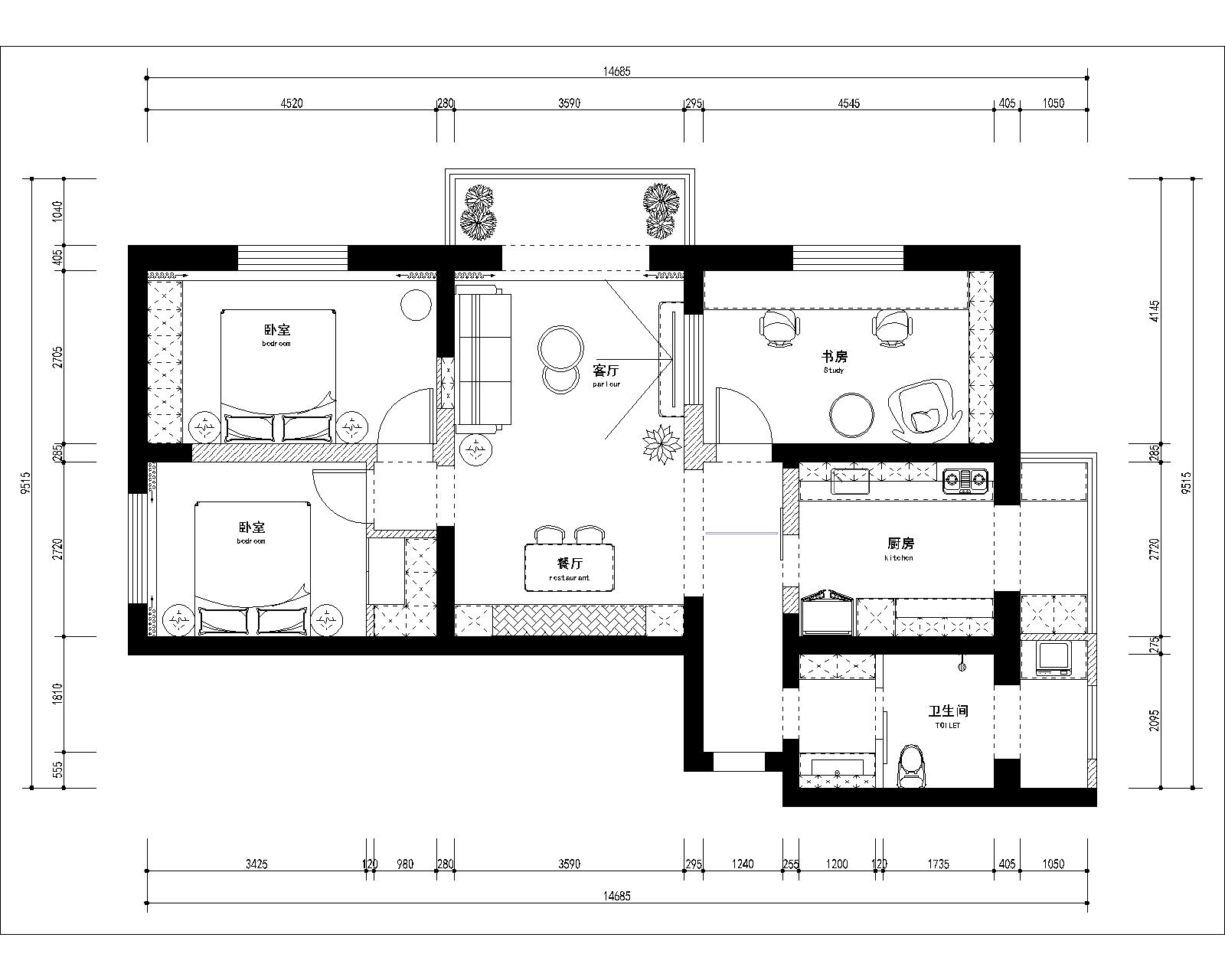
双柳北街小区

所在地区:   /   户型风格:三居   /   案例面积:120

更新时间:2021-10-30

现在预约

设计师:卢文宇
级 别:优秀设计师
部 门:


级别:优秀设计师

设计理念:设计是一种感受、一种心态、一种舒适的、开心的生活方式。

擅长风格:现代、欧式、中式、轻奢

主要作品:富力又一城小区、首都机场生活区、北京青年城小区、左家庄、静安庄、西坝河、枫泉花园小区、长岛澜桥小区、世纪东方嘉园、望京西园、风度柏林、国美第一城小区、京旺家园小区、中灿苑小区、拂林园小区、紫南家园、百环家园、龙跃苑一区、龙府花园、朝新嘉园、北大肖家河小区

电话预约:010-6433-2680

相关案例

友情链接:AG真人国际  米兰官网  米兰官网  摩根娱乐  米兰官网  摩根娱乐  365在线体育  365在线体育  PG电子官网