新房装修总是要多费些心思,AG真人的业主王先生这套使用面积100平米的新房马上打算装修了,考虑到未来儿子结婚后可能会一起居住,这套三室一厅的房子要重新规划的地方还真不少。
设计师李世昌 BTV主持人秦天 业主王先生
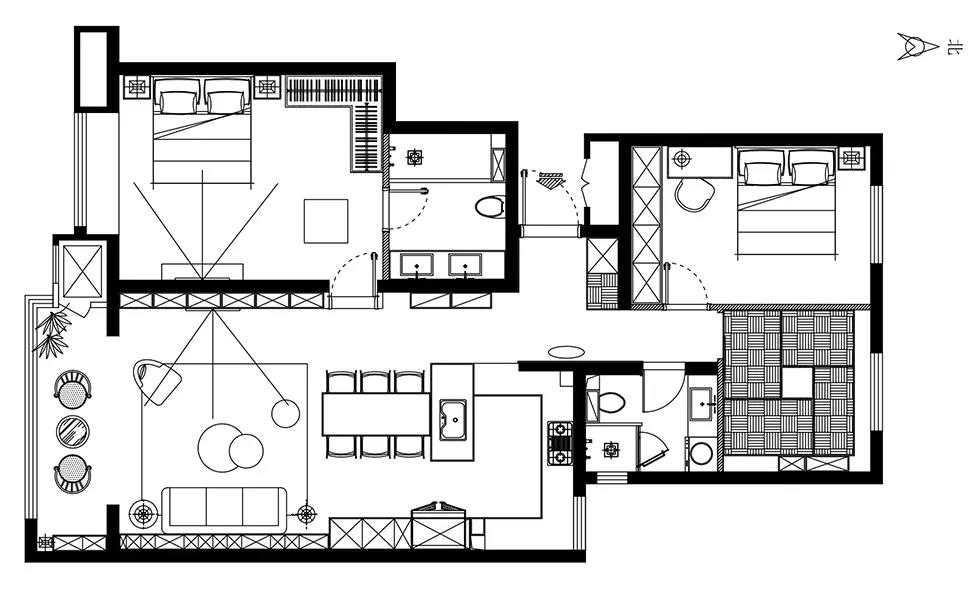
原始户型图
装修需求:
一、合理规划门厅,增加储物
门厅面积2平米,空间狭小,王先生希望门厅能够有足够的储物空间,除此之外,王先生还希望能够利用自己的绘画作品,打造一个不一样的玄关。
二、增强餐厨空间互动,增加储物
厨房面积6平米,是封闭式的,王先生希望能够有个岛台,增加厨房和餐厅间的互动,实现沟通无障碍,并且希望未来厨房储物强大,操作方便。
三、重新布局客厅
客厅面积32平米,空间比较规整,但是王先生对客厅的开阔性不是很满意,他希望未来的客厅能够更加通透,视野更加开阔,满足大容量储物的同时,干净、整洁,所有的生活用品都能够进行隐藏式收纳。
四、主卫空间最大化利用
主卧卫生间将近6平米,王先生希望将来的卫生间夫妻俩同时使用时互不干扰。
五、重新规划次卧
次卧面积13平米,将来是王先生儿子的卧室,不仅要实现实用美观,并且还要满足孩子的正常储物和学习需求。
针对王先生提出的重新规划门厅;厨房改善布局、增加储物空间;重新规划客厅;卫生间干湿分离等一系列改造难题,设计师李世昌是如何帮王先生一家解决的呢?
平面布置图
改造后实景:
1、门厅
进门左手边,设计师利用定制家具和多功能五金,为业主规划了一组鞋帽柜,结合主人自己的画作,在入户门正对的这面墙,打造了属于王先生,独一无二的玄关,为门厅增添了不少的艺术气息。
2、厨房
设计师拆除了厨房的两面轻体墙,将封闭式厨房改为开放式。一组G字型橱柜,洗切超动线合理,超大的台面设计,满足了王先生操作的同时,还能摆放下不少的小家电,触碰式升降电源的设计让厨房更显科技感。再配合大容量吊柜、地柜和电器储物柜,设计师将储物空间做到了极致,餐区沿着洗手台将用餐区域摆放在这里,做饭的同时还能与餐区进行无障碍互动,整体家庭氛围更加融洽、和谐。
设计师客厅和阳台的推拉门拆除,将阳台区域纳入到客厅里,改造后的客厅与过道、厨房、餐区、阳台形成了一个大的开放空间,整体空间达到了56平米,彻底实现了王先生想要的开阔式客厅。沙发、茶几依次摆放,设计师利用定制家具为业主打造了电视柜和客厅储物柜,有藏有露,实现了一家人想要的大容量储物。阳台则打造成休闲区,与朋友喝茶、聊天的同时,欣赏窗外的美景,公共区域整体空间大气、温馨、舒适。
4、卫生间
设计师结合业主的需求,打造了岩板台面的双盆一体的浴室柜,解决了每天上早夫妻共用洗手盆打架的问题,最大化保留了淋浴区空间,悬挂式马桶,清理自如、无卫生死角,整个空间采光充足、使用便捷。

5、次卧、客房
设计师将这两间卧室合理规划,一间作为王先生孩子的卧室,挪动次卧的门洞,沿墙体打造一组通顶衣柜,还加入了工作区域的设计。另一间则作为客房,整屋榻榻米实现了大容量储物,业主王先生在这个空间还可以进行绘画创作,大大提高了实用性。