本期案例是AG真人的业主冯女士家的这套老房,房屋面积70平米,两室一厅一厨一卫,上次装修还是13年前,如今老房改造问题多,设计师是如何为老两口规划的呢?一起来看看吧。
设计师张向怀 业主冯女士 业主郭先生 BTV主持人秦天
1、重新规划门厅,增加储物和适老化设施
门厅空间目前几乎没有利用起来,冯女士希望能够合理规划门厅空间、增加储物量并且增加适老化设备以方便日常。
2、重新规划厨房,改善使用困境
这个空间已经影响到了老两口的正常生活,不仅厨房卫生间不能同时用水,吊顶也是靠木棍支撑的,随手可拿下来的墙砖,以及地面上有一定高度的门槛,都给老两口的日常生活造成了安全隐患。
3、卫生间增加储物,改善采光
冯女士希望将来的卫生间能够通透明亮,有足够的储物空间。
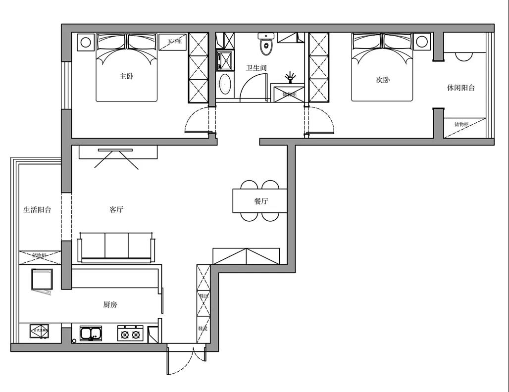
平面布置图
改造后实景:
1、门厅
进门右手边,设计师规划了一组通顶鞋帽柜,增加了门厅储物空间,卡座的设置方便了日常坐着换鞋,考虑到未来可能有轮椅的出入,设计师特意将鞋帽柜的厚度设计为35厘米,既为过道留出了更多空间,也能够满足日常鞋子的存放。


与门厅鞋帽柜相对的厨房门,设计师贴心的设计为推拉门,推拉门的使用完全不会影响到门厅和厨房空间,另外,地轨嵌入到瓷砖里,确保地面无障碍。


2、卫生间
设计师将卫生间一面墙往里推了40厘米,形成一个L形的墙体,外面是储物柜,里面则是淋浴,进门左右边则是洗手池和洗衣机,宽阔的淋浴空间,壁龛的设计,方便实用。
3、厨房
厨房空间足够大,双一字型橱柜,操作方便,储物充足,设计师贴心的根据冯女士身高,将厨房台面高度设计为82公分高,使日常操作更舒适。隐藏式的柜体抠手,不仅美观,也避免了磕碰,节省过道空间。
4、客厅