本期案例AG真人的业主李女士家的这套房子,使用面积为74平米,是套三室一厅的新房。未来是李女士一个人居住,虽说是一个人生活,但朋友多,一到周末三五好友都会过来小聚一下,因此李女士也想把家好好装一下。

业主李女士 BTV主持人秦天 设计师王昊

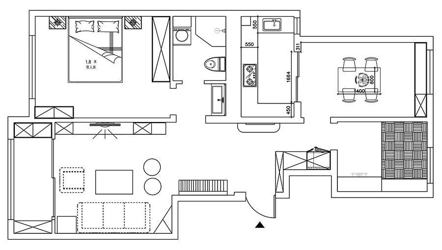
原始户型图
1、合理规划门厅,规划充足储物空间
门厅空间9平米,李女士平时喜欢在家招待朋友,希望能有个储物充足的门厅。
2、重新规划厨房,增加储物
厨房不到6平米,是个狭长形的格局,厨房门直对入户门,李女士认为很别扭,她希望改造后的厨房能够合理好用,储物强大。
3、充分利用客厅与阳台空间
客厅有14平米,阳台4平米,李女士希望能将这个客厅和阳台充分利用起来。既有宽敞的客厅,又有足够的储物空间,还能晾晒方便。
4、卫生间实现干湿分区
卫生间将近4平米,要满足淋浴、如厕、洗漱、洗衣4大功能,空间过于局促,李女士想要个干湿分离的卫生间,并且增加足够的储物空间。

平面布置图
改造后实景:
1、门厅
设计师封堵了进门正对面厨房的门洞,这里就有了一面完整的墙,打造了入户玄关。进门右手边沿墙体,一组L形整体定制衣帽柜,集出门鞋帽柜、日常储物、冰箱于一体。
2、客厅
设计师将14平米的客厅打造成李女士喜爱的美式风格,沙发、茶几、电视柜、角柜一应俱全。为了方便晾晒,结合业主的需求,设计师保留了阳台功能,利用金色窄边推拉门进行隔断设计,在阳台的两边利用定制家具打造了两组通顶储物柜,来补充客厅的储物,整体空间美观、实用。
3、卫生间
为了实现干湿分区,设计师将过道的1.7平米,也纳入到卫生间功能区,将洗手盆外移到这里,而卫生间里保留了淋浴、如厕和洗衣三大功能,还利用定制家具在洗衣机的上方打造了一组储物柜,大大提高了卫生间的储物功能。
4、厨房
设计师封堵了厨房原有的门洞,将新的门洞开在另一侧,一组U字形橱柜,满足大容量储物的同时,还增加了不少造作空间,推拉门的设计则挡住了厨房的油烟进入餐厅。
5、餐厅
设计师将距离厨房最近的这间次卧室打造成了用餐空间,6人位餐桌大大满足了业主和朋友的用餐需求,一组L形餐边电器柜,拓展了餐区的储物,小家电和红酒也有了摆放的位置,整体空间,温馨、实用。

