BRTV主持人秦天 AG真人方总 设计师陶鸿
一、老房在空间上存在哪些问题?
1、格局不合理
2、功能缺少
3、厨房、卫生间小
4、通风采光不好
5、储物功能不足
老房尤其是一些年代久远的房子,房屋结构设施老旧失修、房屋的功能无法满足当前人们的生活需求和生活习惯,这就需要针对不同的年龄段、不同的生活习惯,对整体格局进行改造,以满足使用需求。
不同年龄段的人群有不同的居住需求,年轻人重视空间的开阔性,对共享空间需求大。中年人要求舒适度。老年人要求环保、适老化。
对于老房的改造,设计师要着重注意两点:
1. 补全功能
对于有功能缺失的老房,用一个字来说就是补,缺哪补哪。以门厅为例,如果缺少放鞋柜的位置,有两种解决方式,在原格局能动的情况下,可以直接规划出门厅空间。在原格局不能动的情况下,可以利用定制家具来解决,根据情况来调节鞋柜的尺寸,灵活多变。
2. 增加品质
如果老房子的基础功能已经满足,但是需要改善一下生活环境,提升生活品质,例如实现智能家居,个性化设计的融入等。
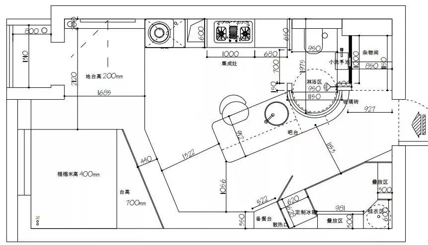
案例一:这是一套建筑面积50平米的大开间,是一位独居女性居住,她希望这个开间能够动静分区、合理规划出餐区、客厅空间,并且能有方便、好用的厨卫空间,还要增加储物空间。

原始户型图

平面布置图
设计师贾向楠改变原有结构和动线,重新规划一条斜线异形布局,以岛台为中心,进行U字形设计规划,让小户型各个功能区完善的同时,还可以互相借用空间,实现多功能区域联动。


对于这种虽然面积小,且居住需求高,而且储物的需求也不低,在设计中要注意:1. 空间共享、功能叠加 2. 利用定制家具
案例二:这套房子建筑面积55平米,是两室一厅一厨一卫的格局,未来要满足三代四口人居住需求,同时还要开放式的大厨房,卫生间也要干湿分离,还要给孩子留出活动学习的空间。
原始户型图
平面布置图
设计师王维将厨房移出,改为开放式,餐厨一体化空间。卫生间空间也扩大了,更是实现了四分离。将原来大卧室一分为二,一间作为卧室,另一间作为会客区同时还兼具客卧的功能。



对于一些空间不足,空间不合理的老房要做装修改造,要注意:1. 明确需求 2. 预留未来可能性 3. 先设计、再选材
案例三:这套房子,最初是由两套房子改成的一套四居室,筑面积118平米,三口人居住。




对于大户型老房的改造,设计师要特别注意:1. 空间重组 2. 合理规划动线