
BRTV主持人秦天 AG真人方总 BRTV《生活+》栏目制片人王宏
但凡参与过装修的人都了解,厨房和卫生间堪称“史诗级”的工程,稍有不慎就会对日后的使用造成不便,不论是新房装修还是老房翻新,厨卫永远是首要考虑的地方。今天咱们就一起来聊一聊,不同户型,不同需求下,卫生间改造该注重哪些?
卫生间作为每个家中不可或缺的一部分,在规划之初,就要顾及到日常生活的方方面面。一个理想的卫生间,应该从多个维度去考虑它的改造。第一,从家庭结构上,平时是几代几口人居住。第二,根据每个人的生活习惯规划卫生间。第三,最大化实现卫生间储物功能。
七八十年代的老房,一般卫生间都较小,承重墙较多,也没有干湿分离,对于现在的生活来说格局上也存在不太合理的地方。下面,咱们一起来结合实际案例为您分析一下小户型中,老房卫生间改造要注意哪些?
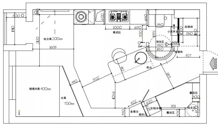
李女士家的这套老房建筑面积55平米,未来要满足三代四口人居住,卫生间只有1.5平米 不仅老化严重,功能还缺失,周围全是承重墙。
原始户型图
平面布置图
设计师王维巧借原厨房空间,将卫生间面积扩大至8平米,还实现了空间的四分离。原来的卫生间作为淋浴区湿区,中间是手盆区,再往里是马桶区和家务区。不仅功能更完备,而且每个功能区给人的感觉是既独立又统一。
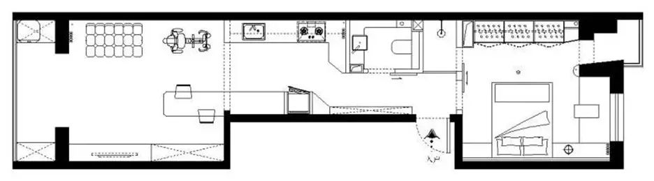
王女士家的这套房子,建筑面积50平米,是个大开间,只划分了厨房和卫生间,其它空间并没有做明确划分,这个开间卫生间面积将近4平米,她认为一个人住,这么大的地方有些浪费。

原始户型图
平面布置图
设计师贾向楠对整体格局重新规划,将卫生间缩小至2平米,但里面该有的功能也全都有,而且原来的暗卫生还用玻璃砖的形式变成了明卫,改造后的卫生间可以称得上麻雀虽小五脏俱全。
金女士的这套老房建筑面积64平米,使用面积仅有47平米,卫生间只有2平米,洗澡、如厕离的很近,洗完澡后哪哪都是水。
原始户型图
平面布置图
设计师贾向楠重新规划了卫生间,做了明确的区域分割,原来的洗漱区封堵后,改为了淋浴区,从主卧进入,虽然只有1.2平米,但也符合淋浴间的常规尺寸。而洗漱和如厕区从门厅的走廊进入。4.4平米的空间里,打造了L型定制浴室柜,解决储物收纳。