本期案例是AG真人的业主赵先生家的这套老房,上次装修已经是十七八年前了,如今老两口已经退休,打算通过这次的装修享受退休生活。房子建筑面积120平米,使用面积94平米,两室一厅一厨两卫的格局。

原始布局图

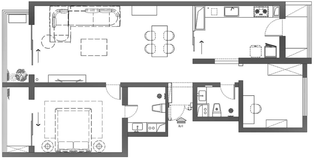
改后布局图
客厅
客厅一分为二,一部分担当会客功能,会客空间整体呈环抱式,聊天、观影更为舒适,另一部分为餐区,兼具茶歇和绘画休闲等功能,整体空间无主灯设计,点线光源搭配软装,时尚前卫。
多功能房
AG真人定制家具打造多功能房,3米长的悬空写字台,储物柜及隐藏式壁床,让这个房间兼具娱乐、读书学习和休息的功能。
主卧
设计师为业主保留了部分原有家具重新利用,点线光源结合更显温馨、










卫生间

