本期案例是AG真人的业主王先生家,王先生一家三口在这里已经生活了20年,房屋面积106平米,面积虽不算小,但储物空间着实有些紧张,在加上随着孩子的长大成人,生活方式的改变,这套房子原本的功能也急需重新规划。

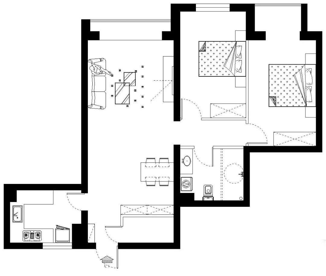
原始户型图
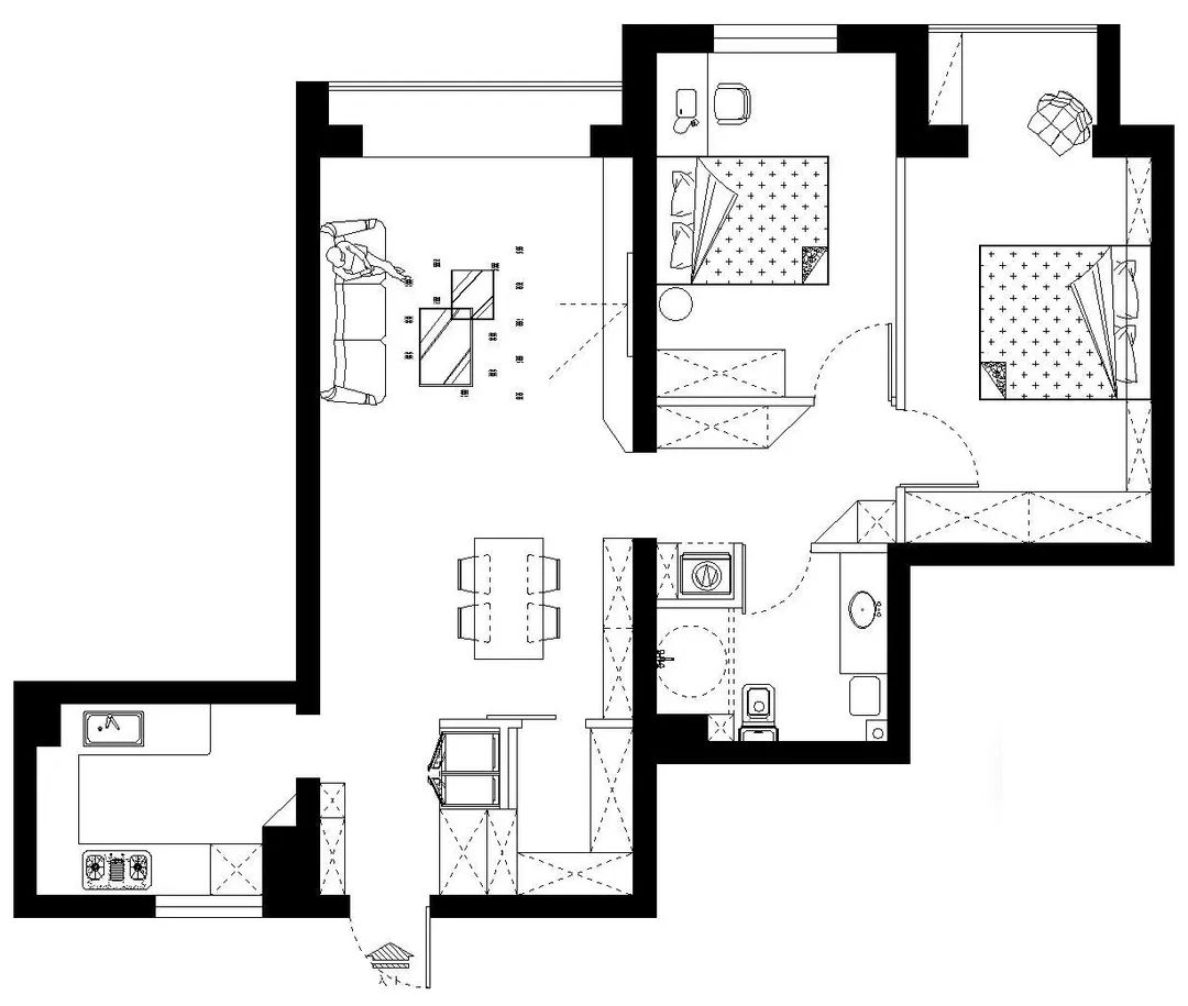
改后布局图
门厅
门厅两侧打造两组通顶衣帽柜,解决收纳
冰箱内嵌,为厨房预留充分改造空间

厨房
一组定制U字型橱柜
在原有基础上延长橱柜长度,增加吊柜厚度
储物、操作更为便捷
规划半高电器柜,收纳更为方便的同时解决了采光问题
餐区
既是餐区,也是茶水区
定制餐边柜储物、展示分工明确


客厅
借助餐区及储物间的储物功能,释放客厅空间
沙发、茶几、电视柜依次摆放
业主养鱼养花的爱好在这里得以实现

加宽过道空间,规划两组定制柜
一组收纳杂物,一组作为家政区进行收纳
卫生间
新建S型墙体,洗衣机外移
洗漱区、淋浴区、马桶区域分区明确
加大定制浴室柜解决收纳问题
卧室
一组通顶定制大衣柜
增加了收纳,也解决了落尘问题