这是一套在北京胡同的平房,有上百年的历史,历经几代人在这里居住,房子已经陈旧,里面的功能设施也都老化了,张先生想进行现代化的改造,但房子使用面积只有29平米,既要里面的功能齐全,又要符合年轻人的生活方式。
装修需求:
合理规划客厅,改善客厅采光,既要满足会客,还要解决临时居住的问题,并且还要有充足的储物空间
重新规划卧室,既可以容纳一张大床,还要有充足的储物
增加厨房储物及操作空间
卫生间实现干湿分离

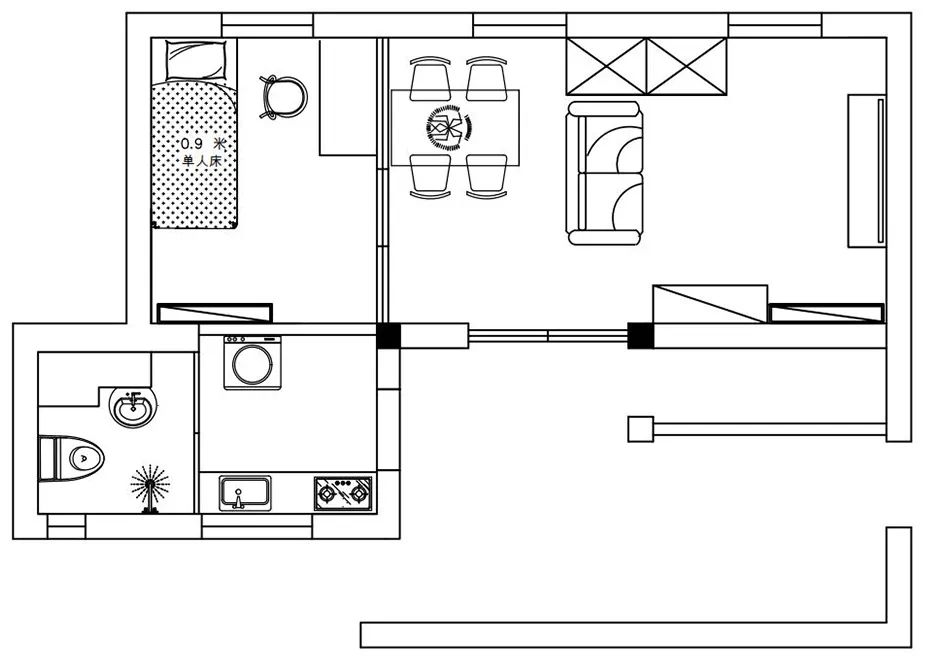
原始布局图

改后布局图
客厅空间
设计师利用断桥铝窗户封堵了原来连廊的部分,顶面采用钢化玻璃加百叶窗方式,既起到了密封隔音效果,又可以根据自己需要来调整采光度。
这样调整后,两平米的空间也被纳入到客厅,客厅由原来的15平米变成了现在的17平米。

利用定制家具在入户门规划了一组换鞋柜,背面与办公桌相连,靠窗位置规划为办公区,顺着电视柜转过来,靠墙放了一整面墙的储物柜,可放衣服、大件物品等,这个柜子里面还隐藏了一个壁床,可作为临时居住的地方。

厨房空间
设计师将原来的卧室规划为了厨房,利用平房尖屋顶的特点,从顶到地面高度有4米,上面留1米8规划为了卧室,下面留2米作为厨房,厨房现在面积达到7.8平米。
U形橱柜布局,利用了楼梯下方的空间,把冰箱放在里面,橱柜中间活动空间宽度达到1米2,操作台面做成了吧台的形式,两个功能二合一,做完饭在这里就餐,最多可以满足6人使用。
卧室空间
设计师利用平房尖屋顶的高度,实现了二层空间,上面规划为卧室。楼梯的扶手采用钢化玻璃,节省空间,同时也更通透、现代。这里只放置床垫、一组矮柜,满足休息、储物,十分温馨舒适。

卫生间
厨房移到卧室的位置,卫生间就可以把原来厨房的空间利用上,实现干湿分离功能。
卫生间里面能实现1米2的独立淋浴空间、并放下马桶;外面干区,定制浴室柜、镜箱,台面上方有足够空间放置洗漱用品,台面下方嵌入了洗衣机。
