马女士家的这套房子,使用面积130平米,四室两厅一厨两卫,将来是马女士夫妻俩、孩子,加上两位老人,三代五口人同住。马女士希望能够通过这次装修,拥有一个舒适的家。
装修需求:
合理规划门厅,增加储物空间
合理利用厨房阳台,增加厨房操作空间
重新布局客厅,使空间宽敞明亮
完善主卫的基本生活需求,改善客卫采光
重新规划卧室
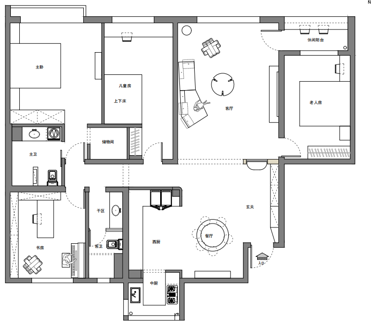
原始布局图
改后布局图
门厅空间
设计师将原来的玄关向后移,增加了门厅空间,面积达到5平米,利用入户门右手边的一整面墙规划了一组定制鞋帽柜,既有高柜,又有矮柜,满足一家五口人的储物需求。入户门正对面打造了镂空景观,既美观又具有一定的私密性。
餐厨空间
设计师拆除了阳台门,将小阳台纳入到厨房中,墙体外延,与烟道齐平,小阳台规划为中厨区,做了U形橱柜,满足洗切炒功能。原厨房位置则打造成了西厨,一组L型橱柜,提供了充足的操作和储物空间。
设计师去掉了餐厅与厨房的推拉门,打造餐厨一体化设计,整个空间面积达到20平米,餐桌改为圆桌,围合感强,就餐也更有氛围。
客厅空间
设计师去掉了原来客厅L形转角沙发,换成一字形沙发,过道更宽敞。电视墙两边的门都做了隐形化处理,与沙发背景的装饰细节相呼应。顶面做回形吊顶、加明装筒灯,达到无主灯的效果,也从视觉上提升了房高。
客卫空间
设计师拆除了部分不承重轻体墙,改为磨砂玻璃,既起到划分空间的作用,又让采光可以照到干区这边,满足干湿分离的同时,也让空间更显通透。
主卫空间
将主卫原来的浴缸去掉,换成了淋浴,马桶与淋浴之间的空间增大,用双面壁龛作为隔断,既划分了空间,又满足了双面储物需求。把原来放在小阳台上的洗衣机,移到卫生间,利用定制家具,将洗手池、浴室柜和洗衣机连成一体,看起来更加整洁,使用起来也更加方便。
卧室空间
主卧利用墙体的长度,做了整体定制柜设计,墙面背景做了双石膏线设计,增加了空间层次感,看起来温馨又有品质。另外三间卧室,朝南的这两间,采光充足,规划为老人房和儿童房。
而朝北的这间卧室则规划为了书房,供一家人使用。











