7*24小时装修报名电话:
17300145179
首页
关于
企业介绍
企业资质
加入AG真人
法律声明
荣誉证书
资讯
企业动态
设计资讯
装修知识
施工资讯
客户口碑
整装
新房整装
老房整装
AG真人活动
特别定制
案例
团队
设计师团队
施工团队
<<生活+>>攻略
全国分公司
滁州
首页
关于
企业介绍
企业资质
加入AG真人
法律声明
荣誉证书
资讯
企业动态
设计资讯
装修知识
施工资讯
客户口碑
整装
新房整装
老房整装
AG真人活动
特别定制
案例
团队
设计师团队
施工团队
<<生活+>>攻略
全国分公司
滁州
当前位置>
首页
>
案例鉴赏
>
案例
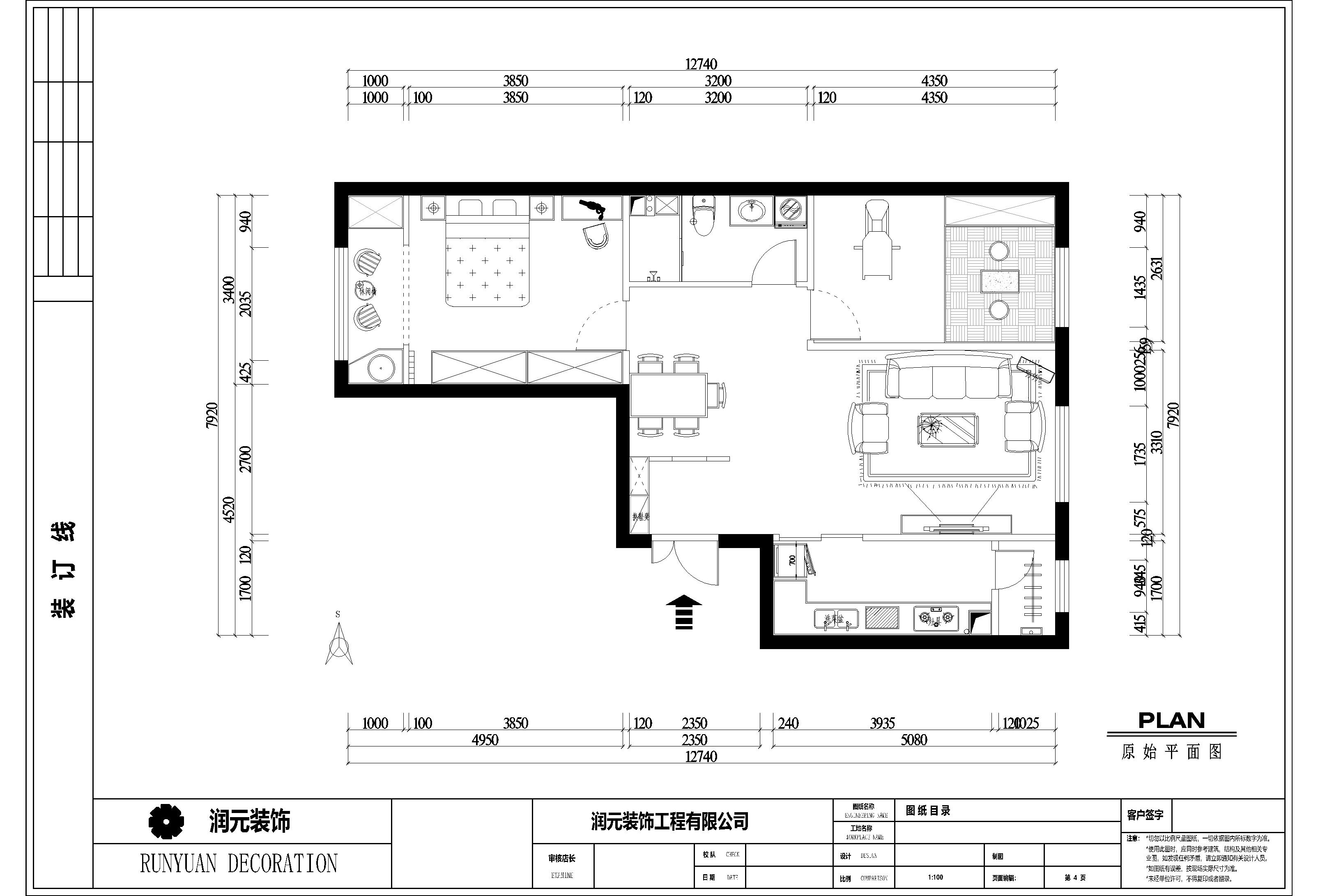
芳城园二区
所在地区:北京市丰台区 / 户型风格:别墅,平层,一居,两居,三居,四居以上 / 案例面积:100平米
更新时间:2020-12-08
现在预约
设计师:张子峰
级 别:主任设计师
部 门:
张子峰
级别:
主任设计师
设计理念:
将设计融入于生活,让生活变得更丰富多彩
擅长风格:
现代,中式,欧式,美式
主要作品:
莲玉家园、九龙花园、力源里小区、月坛北街
电话预约:
010-6433-2680
相关案例
蓝庭苑小区
北大肖家河小区
双柳北街小区
国美第一城
南湖东园
樱花园
艺水芳园
和平西苑
友情链接:
PG电子官网
PG电子官网
AG真人国际
米兰官网
摩根娱乐
星空体育官网
摩根娱乐
米兰官网
星空体育官网
米兰官网